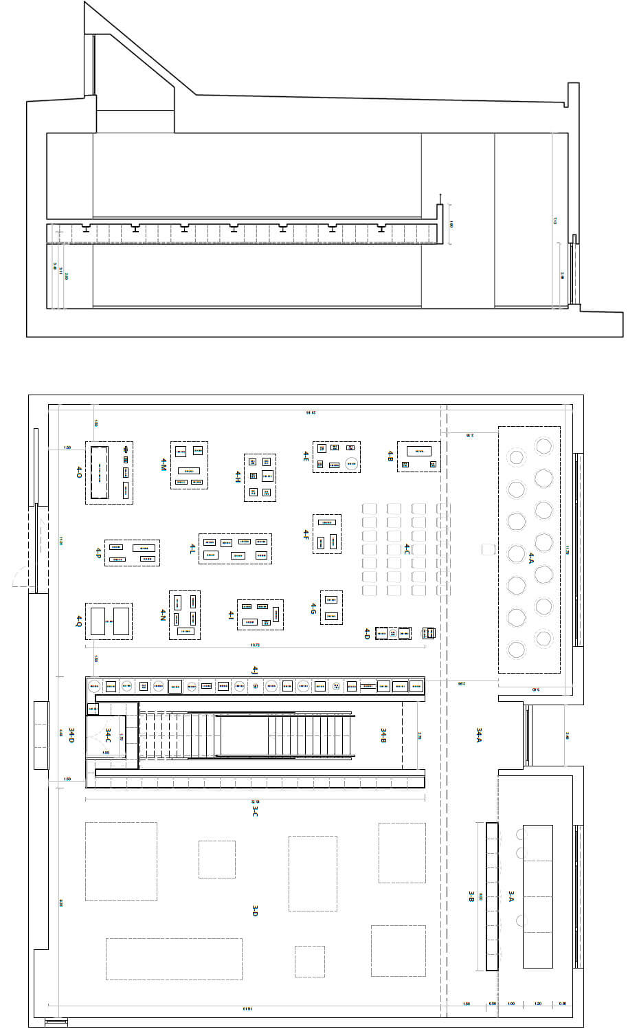
Museologia MDDS
Museu de Arqueologia D. Diogo de Sousa, Braga (2024 - em projeto)
Programa
Museologia
(Exposição de líticos e peças de cerâmica)
Área
475 m²
Cliente
Público
Arquitectura
João Caldas, Rita Breda, Luís Soares
SEE OTHER PROJECTS
FOLLOW US
© All rights reserved


